
叮叮叮!制图教室喊你上课啦~还是每周一,熟悉的时间,熟悉的配方,制图教室与大家如期相会。方盒子一直是大家常用的一种建筑形式,平平无奇的外表下能包罗万象,暗藏乾坤。今天为大家带来的就是一个方盒子作品,一起来探索探索这个不同寻常的盒子吧~

项目目的
社区图书馆作为为周边社区居民提供了宝贵的学习,阅读和社交场所。但当下许多的图书馆设计过于保守,设施老旧,未经修缮,少有人造访。天津睦南公园周边景色优美,原居住民人流量密集,还有许多参观五大道的游客会到此处停留和游玩。我们希望在这里建立一个图书馆,为当地居民创造更高质量的社交空间和阅读空间的同时,也能让阅读和观景产生奇妙的化学反应。通过在睦南公园侧边打造一个内部退台式的正方形盒子作为社区学习中心,人们可以在逐级升高的台阶上获得不断变化的观看体验。并体验最佳的观赏效果和休闲空间的最高点。同时,退台形式的剖面效果在内部创造丰富的视线交流。通过挤压、放大和挑高,创造出不同楼层的通高空间。在私密性较高的空间,如阅读空间,我采用了更私密的尺度,在交流和休闲空间中消解了等级观念,创造出流动的空间,如同户外一般。在阶梯式的空间中,光的进入也充满了变化,光从一个空间过渡到另一个空间,使光的强度流动并对应不同的功能。临街建筑立面的完整性,采用与动线流线一致的广场体量。根据原建筑的环形体量设计,广场上保留了环形流线设计,中间留有较大的通高空间。

项目策略
前期调研
在现场场地调研时,我主要发现了场地存在如下的问题,并打算根据对应问题通过建筑手段进行改善:
1.道路拥挤:场地紧邻睦南公园和小学,街道高宽比较小,在早中晚高峰期常拥堵不堪。2.人流密度大,缺乏动静分区:来此休闲娱乐的老人,小孩较多,但睦南公园并未为他们提供足够大的活动范围,且不同行为的人群混杂,没有适合的动静分区空间。3.视线受限:公园周边绿植丰富,且公园呈现二维化的平面在景色优美,但历史名迹丰富的五大道区域呈现内向化的趋势,视线不够开敞通透。
因此,我希望通过垂直建造的方式增加预期中创建的公共休闲娱乐空间,减小对城市土地消耗方面的影响。在游人视线交织,空间互动,光线交错方面又能创造出丰富的体验。
概念生成
首先,通过垂直式的平台,将平面的人流分散到不同高度的平台上,并根据活动类型进行分类,扩大活动范围。
为了保证不同平台的采光和空间使用效果,我对不同功能的平台进行退台处理,丰富每个平台的视线可达性和交流程度。
进一步丰富空间效果,对不同平台的通高进行调整,丰富空间体验性,和光线可达性。同时,将功能体块进行动静分区,在景观面好的睦南公园一侧创造更多观景平台,向内侧创造安静的阅读空间,互不干扰。
在经过几次反复的尝试后,我们对方盒子内部的空间流通性做了不同的调整,最后确定了方案。
首先,在方盒子内部进行设计操作,置入不同功能大小的体块后,在内部生成了阶梯式的错层平台,其次,对这些平台根据对景关系细化了平台的位置。创造不同的路径串联不同位置的错层平台。最后,给不同的平台置入不同的功能,同时创造不同方向的采光。
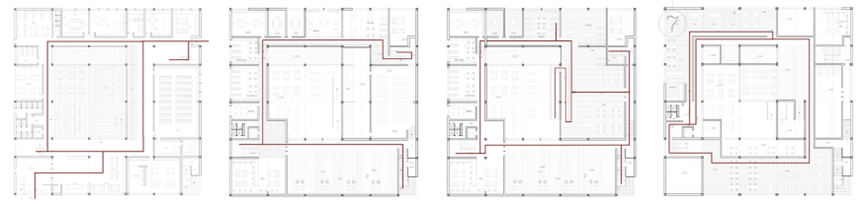
流线主要采用“之”字形流线,连接不同的垂直平台,通过走廊、对角疏散楼梯和内部坡道以及室外楼梯的高度。

平面图提供了每一层楼的详细布局,包括入口、书架、阅读区域、楼梯和电梯的位置。

光线的变化不仅仅是通过窗户的位置,而是通过整个空间的设计,比如屋顶和墙面的开口,来控制和引导光线。
光线的强度和质量被设计来对应图书馆的不同功能区,例如阅读区可能拥有柔和而稳定的光线,而交流区则可能有更为动态的光影效果。
私密空间,如阅读区,通过采用较小尺度和隔断来提供静谧的学习环境。
在交流和休闲空间,等级观念被消解,创造出类似于户外的流动空间,可能通过开放式的布局和少量的隔断来实现。
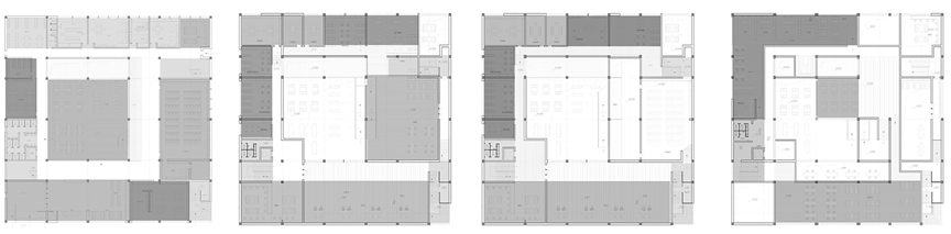
城市层级上的动静分布给建筑内部造成了一定影响,将学习空间,在大中庭进行学习交流,可以望见上方不同通高的出挑平台。辅助空间放置于西北面,交流活动空间布置在靠近街道的东南面。从门厅进入。

流线主要采用回字形流线,通过回廊,对角疏散楼梯和内部坡道,户外楼梯串联不同高度的垂直平台。每层采用相同的柱网布局,强调块与块之间的对位关系。

在建筑内部,这种退台形式创造了丰富的视线交流,可能意味着从某个点可以看到多个楼层的活动,从而增加了空间的互动性和动态性。



立面图和剖面图:揭示了建筑的外观和不同层次的内部结构,以及内部空间的高度和深度。节点设计:详细展示了建筑中一些关键部分的构造,如窗户框架、楼梯连接和屋顶结构。


立面设计考虑了与周围环境的联系,以及人们如何从街道进入图书馆。广场上的环形流线设计围绕图书馆和中心的通高空间布置,这样既能引导人流也能提供集会或活动的场地。





这个项目旨在天津睦南公园旁边建立一个图书馆,以改善当地居民的社交和阅读空间,同时与美丽的周边景色相融合。
退台式设计允许人们在逐级升高的台阶上体验不断变化的视角,最终达到一个观赏效果和休闲空间的高点。通过这种形式,在建筑内部创造了丰富的视线交流,使得每个空间都有其独特的视野。设计中消解了等级观念,通过挤压、放大和挑高等手法,在私密和公共空间之间创造了流动性,使得空间的体验更像是户外。
设计允许光线在不同的空间中流动和变化,强调了功能区的不同。
立面的设计保持了与动线流线一致的广场体量,同时在原有建筑的环形体量设计基础上,广场上保留了环形流线,中间是一个较大的通高空间。
在细节上,图书馆的平面图、立面图、剖面图详细地描绘了建筑的布局、空间分配、进出口的位置、楼梯和坡道的设计,以及如何通过建筑的形态来引导人流和视线。视觉化图像则展示了设计的三维效果,包括内部空间的感觉和光线如何穿透空间。整体上,这个设计旨在创造一个功能性和美学兼备的图书馆,它不仅是一个学习和阅读的场所,也是社区生活的一个重要组成部分。
今天的方案分享就到这里了。还是老规矩,下一期我们将从这次项目的全部图纸里选出一张来进行制图教学,喜欢这期图纸的小伙伴记得蹲一下哦~咱们下期不见不散。
教程讲完了,还是我们的老规矩,大家有任何想说的,都可以在评论区给我们留言。有任何问题,可以通过我们制图教室的负责人加入我们的制图教室交流群,大家一起快乐地学习进步吧~
LAC空间学部 25、26fall 招生现已全面开启!
扫描下方二维码即可免费咨询!

wechat:客服账号