LAC的书屋 | 大家都在讨论的建筑叙事是什么?

在灵感枯竭时我们常常会需要经典理论或实用案例来推进我们设计,但每当想要找书看时却被五花八门的推荐迷花了眼。基于大家对于知识的渴望,LAC STUDIO特地推出【LAC的书屋】栏目!我们会联系于各大知名高校(Harvard、Cornell、MIT、UCL、AA等)在读的学长学姐以及导师来为我们陆续推荐书单/书目,从艺术到哲学,从理论派到实践派,从古罗马到后现代,从园林理论到城市规划,【LAC的书屋】希望为大家的学习途中提供高质量的书单,如果大家也有特别想了解的兴趣点或研究方向也欢迎在留言区进行回复我们会竭力为大家询问专业人士并进行解读摘录及推荐。



Pro. Sophia Psarra,是伦敦大学学院(UCL)的巴特莱特建筑学院(Bartlett School of Architecture)的“建筑与空间设计”教授和博士生导师,前密歇根大学(University of Michigan)博士检测员和导师,是空间配置与权力关系、建筑、城市和城市地区的空间和政治文化的交叉等领域的专家。
Sophia的研究方向,集中在建筑和城市空间如何通过设计,以及在没有无意识设计干预的情况下、通过长时间的多种社会行为,来塑造和体验。Sophia目前目前正在与伦敦大学学院欧洲研究所(UCL European Institute)的同事合作,研究与欧洲和更广泛背景下政治文化形成相关的、议会和议会空间的架构。这项工作在伦敦大学学院巴特莱特总院,举行了两次有关议会大厦的会议(2020 年 11 月;2021 年 2 月),并被出版为合编卷。
「 内容简介 」


所谓叙事(narrative),是一种文学体裁,故事在时空中有序再现的形式;是一种结构,将部分整合成为一个整体的结构;是一个叙述过程,选择安排渲染活动/故事题材的过程,从而使得读者获得一种与时间捆绑在一起的特殊效果。
叙事,通常被视为一种受序列、空间和时间约束的表现形式。但它也被视为一种结构,一种将部分组合成整体的特殊方式,一种“叙述”。叙事,可以用来选择、安排和渲染故事材料,从而对感知者(perceiver),形成在特定时间形成效果。
叙事,有两部分组成:叙述者(narrator)和读者(reader)。同理,像建筑需要建筑师和观众一样。因此,叙事不仅仅是叙述故事的内容,或读者解释故事的方式,而且是作者实体、作家、电影制作人、建筑师或展览策展人。叙事结构(narrative structure)、感知体验(perceptual experience)和表征(representation)之间的关系是与建筑最相关的叙事方面。


建筑里的叙事有很多方面,从它所代表的概念“信息”,到通过模型、图纸和其他表现形式对设计的说明。建筑表达(architectural expression),是以叙事为主。它涉及建筑和场所的语义意义,以及建筑对社会和文化信息表达的贡献。
但是,建筑不仅仅表达意义,还参与意义的建构通过空间和社会关系的排序(sequence)。建筑师通过独立于观察者的感知,将空间进行可视化处理,使其成为一种感知条件。建筑师将三维空间的可视化,和抽象的规则框架联系起来,从而安排了概念和感知层次的秩序(conceptual and perceptual layers of order)。
本书还提出了两个问题:第一,我们如何探索概念结构与知觉体验、抽象关系领域与身体体验空间的领域之间的关系(how can we explore the relationship between conceptual structure and perceptual experience, the field of abstract relations and that of bodies experiencing space)?第二,这些领域如何促进文化内容的形成(how do these fields contribute to the formation of cultural content)?
分析案例:密斯·凡德罗——巴塞罗那展馆(Barcelona Pavilion)


密斯曾说过:“我们不知道形式,只知道构建问题(building problems)。形式是我们工作的结果而非目标……我们拒绝形式主义,我们也不追求某种风格,甚至风格的意志也是形式主义的。我们应该将建筑活动从审美投机者手中解放出来,使建筑重新成为它应该有的样子,即建筑(BUILDING)。”
对于巴塞罗那展馆的各种学术解释,不是单一的。这些学术解释在 1960 年代激增,并在 1980 、90年代重新出现,且大多数都依赖于原始建筑的几张照片:Berliner Bild-Bericht公司制作的 16 张照片。
但从所有的观点来看,我们仍然好奇一个中心问题:它的实际含义有很多,但它是如何表达它的含义呢?(Not what it actually means, but how it formulates its meaning. 其实这也是叙事建筑最核心的问题)它的表面反射了什么?它们在建筑物的光学体验中重建了什么样的对称性?最后,如果展馆通过各种学术解释从而上升到标志性和神话般的地位,是否有可能用新的描述机制重新照亮它,而不是那些文字语言?
可视性 Visibility
我们对密斯的设计,最经典的解读是几何关系上的。
首先,它在建筑物质上是不对称的,但在局部有对称,从而挑战了整体对称的经典传统。
其次,它通过墙的端点的对角线对齐,与视线的几何相结合。
注意的是,局部对称,不是密斯甚至勒柯布西耶发明的,而是约翰·索恩和弗里德里·希辛克尔的新古典主义建筑师的发明,不过对角线对齐是密斯自己发明。这些几何关系,既是几何又是视觉,控制着观众体验的视觉体验。

密斯强调从观察者的角度来看建筑物的外观,这个说法不仅可以通过他的透视图和草图来推敲,也可以从他那些用来操纵观众感知的反光材料来思考,也还可以通过对角线对齐来思考。他的绘画,揭示了他如何设想单个空间,但需要完全不同的方法来检查整个视觉体验领域作为连续和流动的条件。
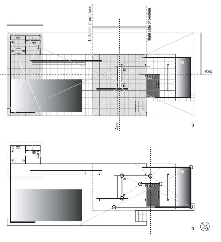
为了解释移动观察者所经历的全局视觉关系,这里使用了一种称为“isovist”的工具,一个来自有利位置的视觉多边形、描述观察者的视野的图表工具。Isovist是一个单一的视觉信息单元,为了表示从所有空间位置产生的等视点的特性,从而在选定的分辨率级别上,将点网格叠加到平面上去。

解释视觉领域之间结构关系及其属性,称为“整合”,用来描述空间位置的视觉互连性。这种度量方式,可以查看每个空间点与计划中、每个其他点之间的距离有多少,或者那些观察者(viewer)应该改变方向多少次,才能看到整个布局。该度量返方法,是空间句法使用的分析工具的一部分,而“空间句法”是一种描述空间特征并将其与体验、社会和文化因素联系起来的理论和方法。
集成区域“靠近”所有其他空间,只需稍微改变方向即可进入,而隔离部分则被视为更“远”的位置。使用的深度图中显示的分析通过不同的灰色阴影表示积分分布。较浅的色调,表示与所有其他位置“更接近”的空间区域,而较暗的色调,则表示视觉上孤立的区域。该图捕捉了建筑物的许多属性,例如:与其他空间相比,内部的可见度较低。


在这本书中,作者提出了“如何将建筑作为一组抽象关系和具体体验领域(embodied experience)来探索”的问题,同时还研究了这些领域与文化意义的关联方式。而这些问题的基础,是对一个更广泛的建筑议题的探索,并以建筑理论为特征。
原本的二元关系,如心灵与身体、精神与身体、形式与功能、形式与意义,有了更多种表达方式。在理论和实践的某些时刻,特别是在现代主义建筑师和历史学家的作品中,两者之间的关系被认为是决定性的:形式被视为本质、历史时期或功能的表达。
但是,随着对秩序概念的反应,出现了无与伦比的形式生产。如果“社会意义已经从功能中被解放出来”的假说成立的话,那么形式的激增(proliferation of form)和建模的数字技术,则是相关证据,证明了建筑并没有从处理形式的抽象关系中解脱出来。相反,建筑与一种或另一种秩序的关系的表达,得到了加强。

「 分享导师 」

| 福利时间 |
后台回复“SW21”
即可获取本书电子版链接
快来领取吧!

